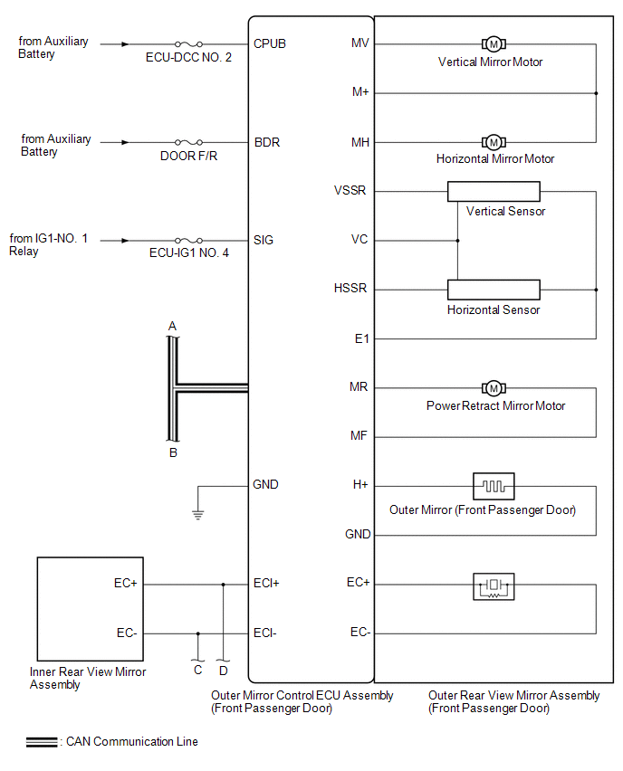
Lexus ES: System Diagram
SYSTEM DIAGRAM

Communication Table
| Sender | Receiver | Signal | Line |
| Main Body ECU (Multiplex Network Body ECU) | Outer Mirror Control ECU Assembly | -
IG signal
-
ACC signal
-
Outer mirror switch assembly signal
-
Mirror position request signal (memory and reactivation function)
-
Mirror position request signal (reverse shift-linked function)
| CAN |
| Outer Mirror Control ECU Assembly | Main Body ECU (Multiplex Network Body ECU) | -
Outer mirror state signal
-
Seat memory switch signal
| CAN |
| Certification ECU (Smart Key ECU Assembly) | Main Body ECU (Multiplex Network Body ECU) | Key ID signal | CAN |
| Air Conditioning Amplifier Assembly | Outer Mirror Control ECU Assembly | Mirror heater drive request signal | CAN |
| Hybrid Vehicle Control ECU | Main Body ECU (Multiplex Network Body ECU) | Reverse signal | CAN |
| Rear Window Defogger switch (Air Conditioning Control Assembly) | Air Conditioning Amplifier Assembly | Mirror heater switch (rear window defogger switch) operation signal | LIN |
READ NEXT:
SYSTEM DESCRIPTION POWER MIRROR CONTROL SYSTEM (w/ Memory) DESCRIPTION (a) This system has the following functions: electrical remote control mirror function, memory and reactivation function, power r
CAUTION / NOTICE / HINT HINT:
Use the following procedure to troubleshoot the power mirror control system (w/ Memory).
*: Use the Techstream.
PROCEDURE 1. VEHICLE BROUGHT TO WORKSHOP
OPERATION CHECK CHECK ELECTRICAL REMOTE CONTROL MIRROR FUNCTION (a) Turn the power switch on (IG). (b) b. With the mirror select switch driver side switch on, check that the outer rear view mirror ass
SEE MORE:
REMOVAL CAUTION / NOTICE / HINT The necessary procedures (adjustment, calibration, initialization or registration) that must be performed after parts are removed and installed, or replaced during front door illumination light (front door outside handle assembly) removal/installation are shown below.
REMOVAL CAUTION / NOTICE / HINT The necessary procedures (adjustment, calibration, initialization, or registration) that must be performed after parts are removed and installed, or replaced during front frame assembly removal/installation are shown below. Necessary Procedure After Parts Removed/Inst
© 2016-2026 Copyright www.lexguide.net
