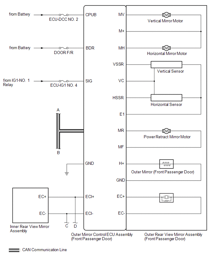
Lexus ES: System Diagram
SYSTEM DIAGRAM

Communication Table
| Sender | Receiver | Signal | Line |
| Main Body ECU (Multiplex Network Body ECU) | Outer Mirror Control ECU Assembly | -
IG signal
-
ACC signal
-
Outer mirror switch assembly signal
-
Mirror position request signal (memory and reactivation function)
-
Mirror position request signal (reverse shift-linked function)
| CAN |
| Outer Mirror Control ECU Assembly | Main Body ECU (Multiplex Network Body ECU) | -
Outer mirror state signal
-
Seat memory switch signal
| CAN |
| Certification ECU (Smart Key ECU Assembly) | Main Body ECU (Multiplex Network Body ECU) | Key ID signal | CAN |
| Air Conditioning Amplifier Assembly | Outer Mirror Control ECU Assembly | Mirror heater drive request signal | CAN |
| ECM | Main Body ECU (Multiplex Network Body ECU) | Reverse signal | CAN |
| Rear Window Defogger switch (Air Conditioning Control Assembly) | Air Conditioning Amplifier Assembly | Mirror heater switch (rear window defogger switch) operation signal | LIN |
READ NEXT:
CAUTION / NOTICE / HINT HINT:
Use the following procedure to troubleshoot the power mirror control system (w/ Memory).
*: Use the Techstream.
PROCEDURE 1. VEHICLE BROUGHT TO WORKSHOP
CUSTOMIZE PARAMETERS CUSTOMIZE POWER MIRROR CONTROL SYSTEM (w/ Memory) NOTICE:
When the customer requests a change in a function, first make sure that the function can be customized.
Record the c
OPERATION CHECK CHECK ELECTRICAL REMOTE CONTROL MIRROR FUNCTION (a) Turn the engine switch on (IG). (b) b. With the mirror select switch driver side switch on, check that the outer rear view mirror as
SEE MORE:
INSPECTION PROCEDURE 1. INSPECT PCV VALVE (VENTILATION VALVE SUB-ASSEMBLY) (a) Install a hose to the PCV valve (ventilation valve sub-assembly). (b) Check PCV valve (ventilation valve sub-assembly) operation. (1) Blow air into the cylinder head sub-assembly side, and check that air passes through ea
OPERATION CHECK CHECK CUSTOMIZE PARAMETERS (a) The operation check below is based on the non-customized initial condition of the vehicle. Click here OPERATION CONDITIONS (a) Operation conditions when engine switch is turned to on (IG): (1) Vehicle speed 3 km/h (2 mph) or less (2) Luggage door ope
© 2016-2026 Copyright www.lexguide.net
