Lexus ES: System Diagram
SYSTEM DIAGRAM

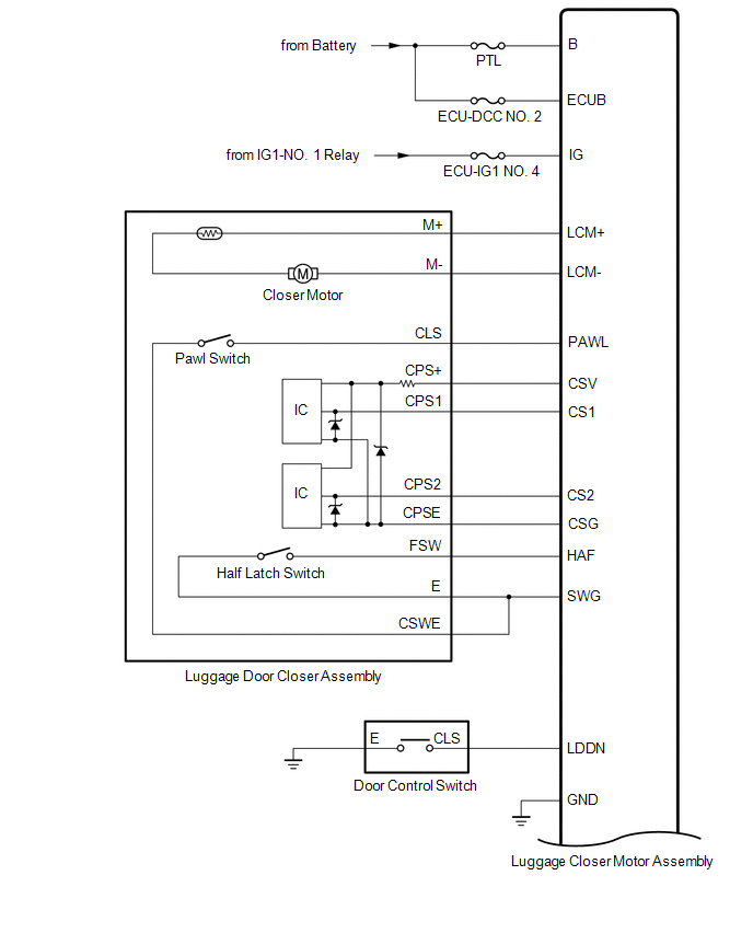
Communication Table
| Transmitting ECU | Receiving ECU | Signal | Communication Method |
| Certification ECU (smart key ECU assembly) | Main body ECU (multiplex network body ECU) | Luggage electrical key switch signal | CAN |
| Combination meter assembly | Main body ECU (multiplex network body ECU) | Vehicle speed signal | CAN |
| Main body ECU (multiplex network body ECU) | Luggage closer motor assembly | -
Luggage electrical key switch signal
-
Vehicle speed signal
-
Luggage door opening cancel switch assembly signal
-
Luggage compartment door opening switch signal
| CAN |
| Main body ECU (multiplex network body ECU) | Kick door control sensor | | LIN |
READ NEXT:
CAUTION / NOTICE / HINT HINT:
Use the following procedure to troubleshoot the power trunk lid system.
*: Use the Techstream.
PROCEDURE 1. VEHICLE BROUGHT TO WORKSHOP
NEXT
CHECK FOR INTERMITTENT PROBLEMS NOTICE:
If the vehicle or vehicle controls are operated (for example, during initial inspection when the vehicle is brought in for repair) before operation history h
OPERATION CHECK CHECK CUSTOMIZE PARAMETERS (a) The operation check below is based on the non-customized initial condition of the vehicle. Click here OPERATION CONDITIONS (a) Operation conditions wh
SEE MORE:
INSTALLATION PROCEDURE 1. INSTALL TILT AND TELESCOPIC SWITCH (a) Engage the claw to install the tilt and telescopic switch. (b) Connect the tilt and telescopic connector to the tilt and telescopic switch. (c) Connect the spiral cable connector to the spiral cable sub-assembly. 2. CONNECT CABLE TO NE
REASSEMBLY PROCEDURE 1. INSTALL REAR BUMPER REINFORCEMENT Click here 2. INSTALL REAR BUMPER PROTECTOR INSERT LH Click here 3. INSTALL REAR BUMPER PROTECTOR INSERT RH HINT: Use the same procedure as for the LH side. 4. INSTALL REAR BUMPER PROTECTOR LH Click here 5. INSTALL REAR BUMPER PROTECTOR
© 2016-2025 Copyright www.lexguide.net
