Lexus ES: System Diagram
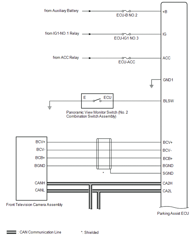
SYSTEM DIAGRAM

READ NEXT:
TERMINALS OF ECU PARKING ASSIST ECU (a) Disconnect the N44 parking assist ECU connector. (b) Measure the voltage and resistance according to the value(s) in the table below. Terminal No. (Symbol)
DESCRIPTION These DTCs are stored if there is a malfunction in the CAN communication system connected to the rear television camera assembly. HINT: If CAN communication system DTCs are stored, they ma
DESCRIPTION These DTCs are stored if there is a malfunction in the CAN communication system connected to the parking assist ECU. HINT: If CAN communication system DTCs are stored, they may also be sto
SEE MORE:
DCM ACTIVATION HINT: If the DCM (telematics transceiver) has been replaced, it is necessary to perform the Register Vehicle Information procedure. DCM ACTIVATION (a) Connect the Techstream to the DLC3. (b) Turn the power switch on (IG). (c) Turn the Techstream on. (d) Choose "Telematics" from the Sy
DESCRIPTION Troubleshooting for when ABS operates too soon due to a noisy signal from the speed sensor, a difference in output, etc. PROCEDURE 1. PERFORM TEST MODE (SIGNAL CHECK) INSPECTION (SPEED SENSOR CIRCUIT) (a) Using the Techstream, perform a Test Mode (Signal Check) inspection sensor
© 2016-2025 Copyright www.lexguide.net
