Lexus ES manuals

Lexus ES: Wiper Switch Signal Mismatch between LIN and Line (B1372)

Lexus ES (XZ10) Service Manual / Vehicle Interior / Wiper / Washer / Wiper And Washer System (for Hv Model) / Wiper Switch Signal Mismatch between LIN and Line (B1372)

DESCRIPTION

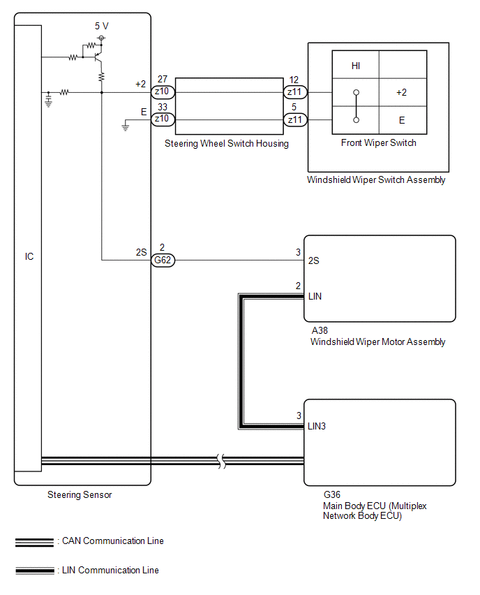
Under normal operation, the windshield wiper motor assembly receives operation signals from the windshield wiper switch assembly via LIN communication.

The windshield wiper motor assembly and windshield wiper switch assembly are also connected via direct line in order to operate the front wipers in HI in an emergency. If the operation signals sent via LIN communication and direct line do not match, this DTC is stored.

DTC No.

Detection Item

DTC Detection Condition

Trouble Area

Memory

DTC Output from

B1372

Wiper Switch Signal Mismatch between LIN and Line

  • Auxiliary battery voltage is 9.5 V or more
  • The operation signals sent via LIN communication and direct line do not match
  • 10 seconds or more
  • Windshield wiper motor assembly
  • Main body ECU (multiplex network body ECU)
  • Steering sensor
  • Harness or connector

Wiper

WIRING DIAGRAM

CAUTION / NOTICE / HINT

NOTICE:

Before replacing the main body ECU (multiplex network body ECU), refer to Registration.

Click here

PROCEDURE

1.

CLEAR DTC

(a) Connect the Techstream to the DLC3.

(b) Turn the power switch on (IG).

(c) Turn the Techstream on.

(d) Enter the following menus: Body Electrical / Wiper / Trouble Codes.

(e) Clear the DTCs.

Body Electrical > Wiper > Clear DTCs
NEXT

2.

CHECK FOR DTC

(a) Connect the Techstream to the DLC3.

(b) Turn the power switch on (IG).

(c) Wait 10 seconds or more.

(d) Turn the Techstream on.

(e) Enter the following menus: Body Electrical / Wiper / Trouble Codes.

(f) Check for DTCs.

Body Electrical > Wiper > Trouble Codes

Result

Proceed to

DTC B1372 is not output

A

DTC B1372 is output

B

A

USE SIMULATION METHOD TO CHECK

B

3.

READ VALUE USING TECHSTREAM

(a) Connect the Techstream to the DLC3.

(b) Turn the power switch on (IG).

(c) Turn the Techstream on.

(d) Enter the following menus: Body Electrical / Wiper / Data List.

(e) Read the Data List according to the display on the Techstream.

Body Electrical > Wiper > Data List

Tester Display

Measurement Item

Range

Normal Condition

Diagnostic Note

Wiper Switch HI (Line)

Front wiper switch HI position signal (direct line)

OFF or ON

OFF: Front wiper switch not in HI position

ON: Front wiper switch in HI position

-

Body Electrical > Wiper > Data List

Tester Display

Wiper Switch HI (Line)

OK:

The Techstream display is normal.

NG

GO TO STEP 7

OK

4.

READ VALUE USING TECHSTREAM

(a) Connect the Techstream to the DLC3.

(b) Turn the power switch on (IG).

(c) Turn the Techstream on.

(d) Enter the following menus: Chassis / Steering Angle Sensor / Data List.

(e) Read the Data List according to the display on the Techstream.

Chassis > Steering Angle Sensor > Data List

Tester Display

Measurement Item

Range

Normal Condition

Diagnostic Note

Wiper Hi Switch

Front wiper switch HI position signal

OFF or ON

OFF: Front wiper switch not in HI position

ON: Front wiper switch in HI position

-

Chassis > Steering Angle Sensor > Data List

Tester Display

Wiper Hi Switch

OK:

The Techstream display is normal.

NG

REPLACE STEERING SENSOR

OK

5.

CHECK HARNESS AND CONNECTOR (MAIN BODY ECU (MULTIPLEX NETWORK BODY ECU) - WINDSHIELD WIPER MOTOR ASSEMBLY)

(a) Disconnect the G36 main body ECU (multiplex network body ECU) connector.

(b) Disconnect the A38 windshield wiper motor assembly connector.

(c) Measure the resistance according to the value(s) in the table below.

Standard Resistance:

Tester Connection

Condition

Specified Condition

G36-3 (LIN3) - A38-2 (LIN)

Always

Below 1 Ω

G36-3 (LIN3) or A38-2 (LIN) - Body ground

Always

10 kΩ Higher

NG

REPAIR OR REPLACE HARNESS OR CONNECTOR

OK

6.

CHECK MAIN BODY ECU (MULTIPLEX NETWORK BODY ECU)

*a

Component without harness connected

(Main Body ECU (Multiplex Network Body ECU)

(a) Check for voltage and pulses according to the value(s) in the table below.

Standard Voltage:

Tester Connection

Condition

Specified Condition

G36-3 (LIN3) - Body ground

Power switch off

Below 1 V

Power switch on (IG)

Pulse generation

OK

REPLACE WINDSHIELD WIPER MOTOR ASSEMBLY

NG

REPLACE MAIN BODY ECU (MULTIPLEX NETWORK BODY ECU)

7.

CHECK HARNESS AND CONNECTOR (STEERING SENSOR - WINDSHIELD WIPER MOTOR ASSEMBLY)

(a) Disconnect the G62 steering sensor connector.

(b) Disconnect the A38 windshield wiper motor assembly connector.

(c) Measure the resistance according to the value(s) in the table below.

Standard Resistance:

Tester Connection

Condition

Specified Condition

G62-2 (2S) - A38-3 (2S)

Always

Below 1 Ω

G62-2 (2S) or A38-3 (2S) - Body ground

Always

10 kΩ Higher

NG

REPAIR OR REPLACE HARNESS OR CONNECTOR

OK

8.

INSPECT STEERING SENSOR

*a

Component without harness connected

(Steering Sensor)

-

-

(a) Remove the steering sensor.

Click here

(b) Measure the resistance according to the value(s) in the table below.

Standard Resistance:

Tester Connection

Condition

Specified Condition

G62-2 (2S) - z10-27 (+2)

Always

Below 1 Ω

OK

REPLACE WINDSHIELD WIPER MOTOR ASSEMBLY

NG

REPLACE STEERING SENSOR

READ NEXT:

 Lost Communication with Wiper System LIN BUS (B1373)

DESCRIPTION The main body ECU (multiplex network body ECU) and windshield wiper motor assembly communicate via LIN communication. The main body ECU (multiplex network body ECU) stores this DTC if comm

 Rain Sensor Malfunction (B1400)

DESCRIPTION This DTC is stored when the rain sensor detects an internal malfunction. DTC No. Detection Item DTC Detection Condition Trouble Area Memory DTC Output from B1400 Rain Se

 Wiper Motor Power Source Circuit

DESCRIPTION This circuit is the power source circuit for the windshield wiper motor assembly. WIRING DIAGRAM CAUTION / NOTICE / HINT NOTICE: Inspect the fuses of circuits related to this system be

SEE MORE:

 Lost Communication with ECM/PCM "A" Missing Message (U010087,U012587,U012687,U012987,U015587,U110687)

DESCRIPTION The forward recognition camera communicates with each sensor and ECU via CAN communication. If any malfunction is detected in a CAN communication circuit, one or more CAN communication system DTCs are stored. DTC No. Detection Item DTC Detection Condition Trouble Area MIL DT

 Lost Communication with Multi-axis Acceleration Sensor Module Missing Message (U012587,U012987,U014087,U029387)

DESCRIPTION These DTCs are stored if a CAN communication malfunction occurs between the forward recognition camera and other ECUs. DTC No. Detection Item DTC Detection Condition Trouble Area DTC Output from U012587 Lost Communication with Multi-axis Acceleration Sensor Module Missin

© 2016-2025 Copyright www.lexguide.net