Lexus ES: System Diagram
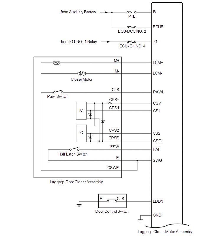
SYSTEM DIAGRAM

Communication Table
| Transmitting ECU | Receiving ECU | Signal | Communication Method |
| Certification ECU (smart key ECU assembly) | Main body ECU (multiplex network body ECU) | Luggage electrical key switch signal | CAN |
| Combination meter assembly | Main body ECU (multiplex network body ECU) | Vehicle speed signal | CAN |
| Main body ECU (multiplex network body ECU) | Luggage closer motor assembly | -
Luggage electrical key switch signal
-
Vehicle speed signal
-
Luggage door opening cancel switch assembly signal
-
Luggage compartment door opening switch signal
| CAN |
| Main body ECU (multiplex network body ECU) | Kick door control sensor | | LIN |
READ NEXT:
CAUTION / NOTICE / HINT HINT:
Use the following procedure to troubleshoot the power trunk lid system.
*: Use the Techstream.
PROCEDURE 1. VEHICLE BROUGHT TO WORKSHOP
NEXT
CHECK FOR INTERMITTENT PROBLEMS NOTICE:
If the vehicle or vehicle controls are operated (for example, during initial inspection when the vehicle is brought in for repair) before operation history h
OPERATION CHECK CHECK CUSTOMIZE PARAMETERS (a) The operation check below is based on the non-customized initial condition of the vehicle. Click here OPERATION CONDITIONS (a) Operation conditions wh
SEE MORE:
DIAGNOSIS SYSTEM DESCRIPTION When troubleshooting OBD II (On-Board Diagnostics) vehicles, the Techstream (complying with SAE J1978) must be connected to the DLC3 (Data Link Connector 3) of the vehicle. Various data in the vehicle's ECM (Engine Control Module) can be then read. OBD II regulations re
DESCRIPTION The radio receiver assembly and stereo component amplifier assembly are connected via MOST communication lines. When a MOST communication error occurs between the radio receiver assembly and stereo component amplifier assembly, this DTC will be stored. DTC No. Detection Item DTC D
© 2016-2026 Copyright www.lexguide.net
